ORANŻERIA #2
INWESTYCJA: ORANŻERIA/OGRÓD ZIMOWY
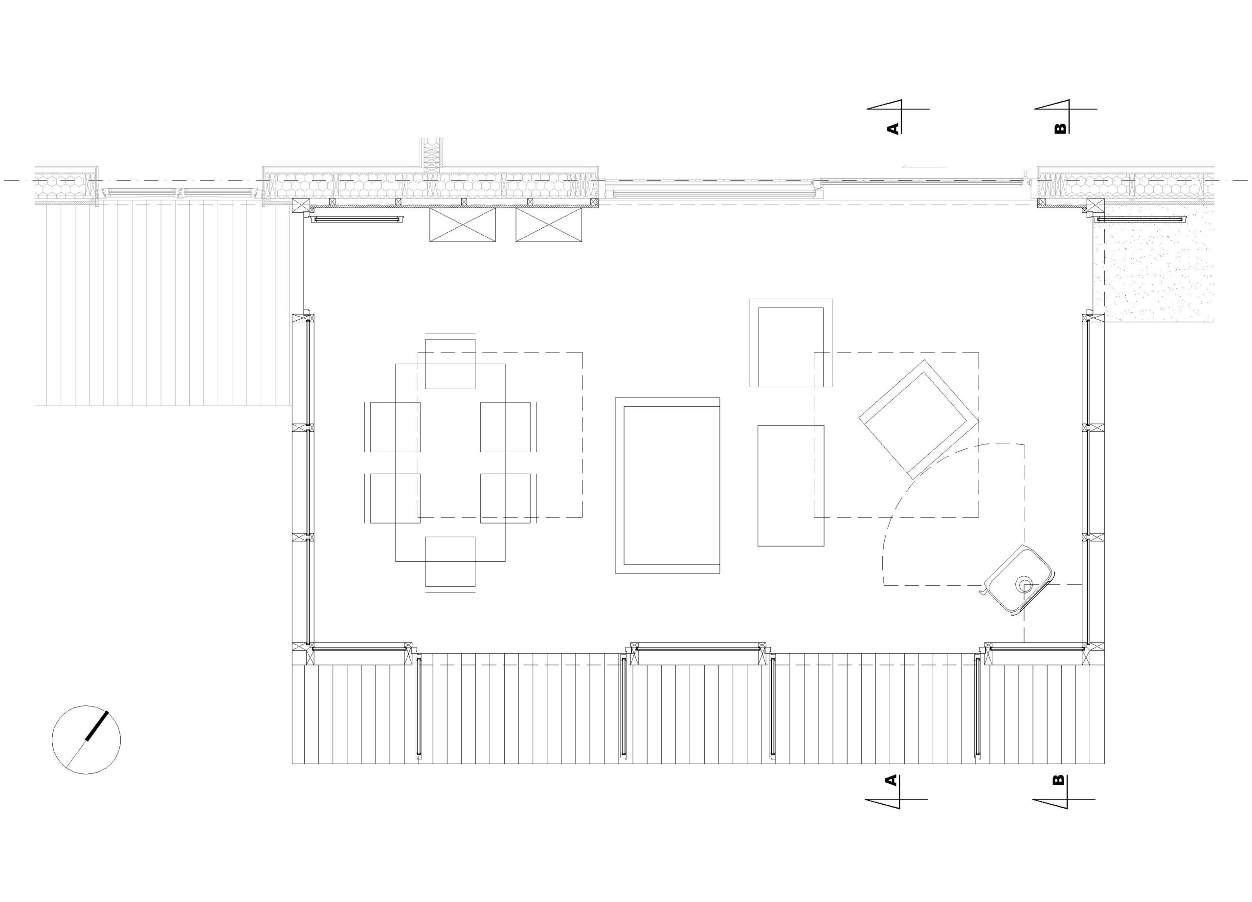
ZAKRES: projekt koncepcyjny - jeden z trzech wariantów wstępnych
LOKALIZACJA: KAMIEŃ
ROK PROJEKTU: 2024
POWIERZCHNIA: 29,5 m² powierzchni użytkowej
RODZAJ KONSTRUKCJI: konstrukcja drewniana
Oranżeria jest kontynuacją projektu w KAMIENIU. Po kilku latach Klienci zwrócili się do nas z prośbą o zaprojektowanie ogrodu zimowego w miejscu tarasu.
ORANŻERIA #2 jest jednym z trzech wariantów koncepcyjnych przedstawionych Inwestorom do wyboru podczas fazy koncepcyjnej. Klienci wybrali wariant pierwszy, który został opisany w zakładce ORANŻERIA #1.