ORANŻERIA #1
INWESTYCJA: ORANŻERIA/OGRÓD ZIMOWY
ZAKRES: projekt koncepcyjny I WYKONAWCZY
LOKALIZACJA: KAMIEŃ
ROK PROJEKTU: 2025
ROK REALIZACJI: PLANOWANA W ROKU 2026
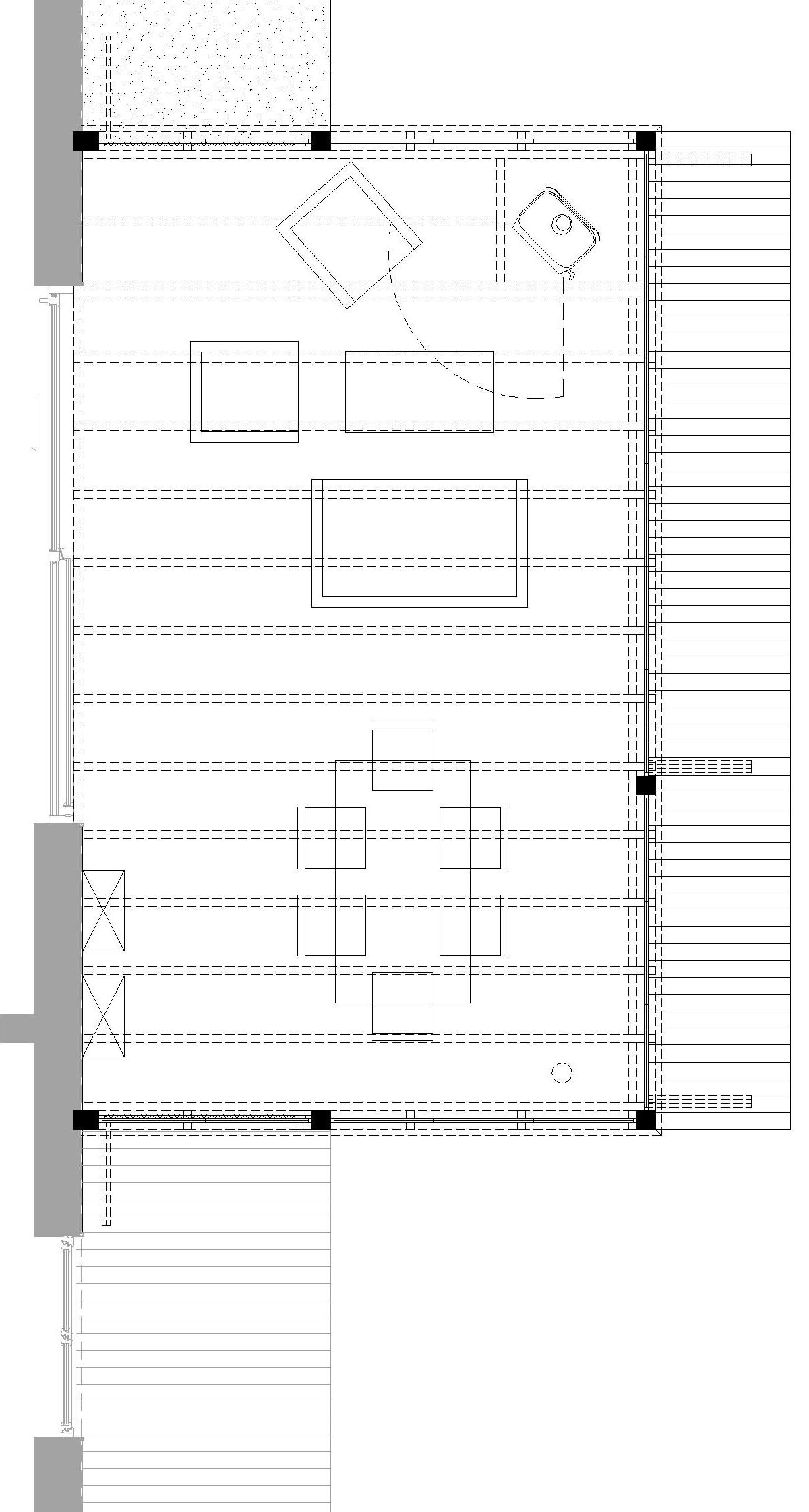
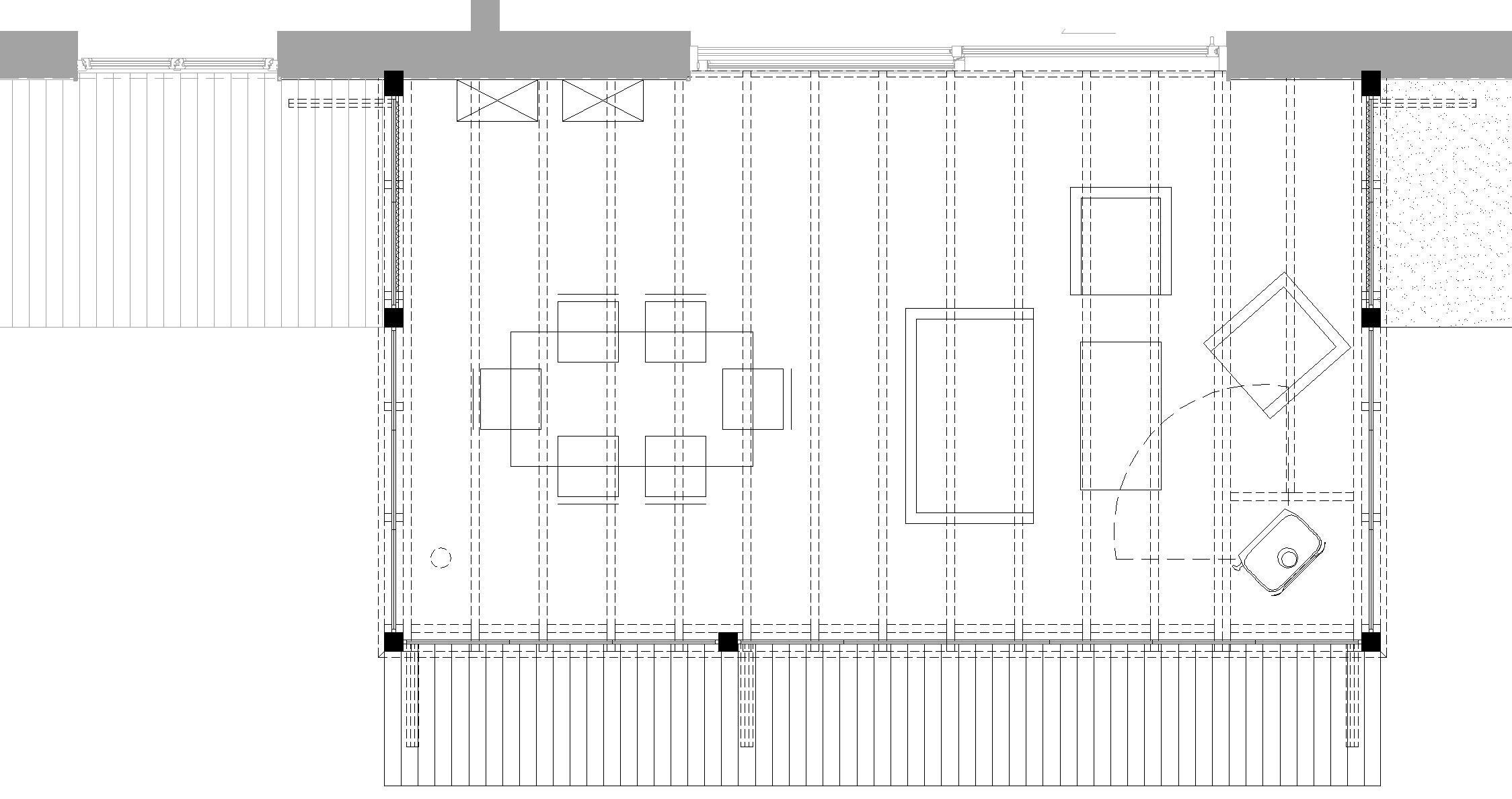
POWIERZCHNIA: 29,5 m² powierzchni użytkowej
RODZAJ KONSTRUKCJI: konstrukcja drewniana

Oranżeria jest kontynuacją projektu w KAMIENIU. Po kilku latach Klienci zwrócili się do nas z prośbą o zaprojektowanie ogrodu zimowego w miejscu tarasu. Taras będący ‘przedłużeniem’ pokoju dziennego, zlokalizowany od południowego wschodu, otoczony pięknie utrzymanym ogrodem był ulubionym miejscem relaksu, ale Inwestorzy chcieli cieszyć się nim niezależnie od pogody.

Ogród zimowy powstanie po obrysie pierwotnego tarasu. Zaprojektowano go w konstrukcji słupowej drewnianej z wypełnieniem ścian stalową stolarką przywodzącą na myśl XIX-wieczne konstrukcje oranżerii. Klienci wybrali tę stylistykę na etapie koncepcji, w którym przedstawiliśmy również dwie odmienne stylistycznie opcje: ORANŻERIA #2 I ORANŻERIA #3. Aby umożliwić korzystanie z dobudówki również w zimniejsze dni we wnętrzu przewidziano piecyk na drewno, który ze względów bezpieczeństwa i zgodnie z opinią kominiarską, musi mieć komin wysokości min. 4 m od paleniska.

Jedną z obaw projektowych była kwestia ograniczenia południowego światła słonecznego w pokoju dziennym. Dlatego na bieżąco sprawdzaliśmy nasłonecznienie za pomocą programu do pomiaru światła dziennego. Dzięki temu mogliśmy również z większym spokojem zadecydować m.in. o rezygnacji z bardzo kosztownego świetlika w dachu oranżerii. Okazało się, że nie będzie on wpływać znacząco na komfort przebywania w salonie, a mógłby obniżyć komfort korzystania z oranżerii w dni bardzo słoneczne.

Na grafikach na końcu przedstawiono analizę światła słonecznego dla parteru budynku przed dobudową oranżerii i po budowie (bez świetlika dachowego) wygenerowaną przy pomocy programu Velux Daylight Visualiser.