SZEROKA
INWESTYCJA: Mieszkanie na wynajem krótkoterminowy
ZAKRES: projekt wnętrz i nadzór autorski
LOKALIZACJA: Gdańsk
ROK PROJEKTU: 2017
ROK REALIZACJI: 2018
POWIERZCHNIA: 93 m² powierzchni netto
WSPÓŁPRACA: Agata Dudzińska (dobór wyposażenia), SALONFÄHIG (obiekty vintage - Holandia)

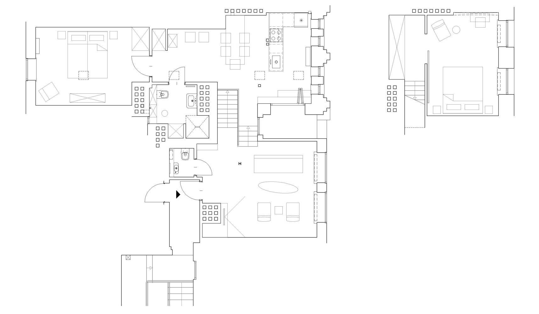
Apartament zlokalizowany jest w sercu gdańskiej 'starówki’, w kamienicach odbudowanych po II wojnie światowej. Powstał w latach 80-tych z adaptacji przestrzeni poddaszy dwóch sąsiednich budynków oraz jednego z pomieszczeń należących do mieszkania na niższej kondygnacji. Rozciąga się na trzech poziomach, oferując nietypowy układ funkcjonalny, wyjątkowe widoki na historyczną zabudowę miasta i tereny stoczniowe, a także niewielki taras dachowy ukryty za elewacjami.

W 2017 roku inwestorzy postanowili się wyprowadzić i przygotować apartament do wynajmu krótkoterminowego. Proces modernizacji rozpoczął się od oczyszczenia wnętrz do ich podstawowej struktury. Sprawdzono konstrukcję budynku, ocieplono dach oraz wymieniono wszystkie instalacje. Udoskonalono układ funkcjonalny: dodano dodatkową toaletę w pobliżu głównego wejścia, wydzielono korytarz prowadzący do głównej sypialni na najniższym poziomie oraz zaprojektowano dużą zabudowę meblową przeznaczoną na rzeczy gości i środki eksploatacyjne. Niewielkie okno, którym wychodziło się na taras zastąpiono przeszklonymi drzwiami, co znacząco zwiększyło ilość światła dziennego i wzmocniło relację pomiędzy wnętrzem a przestrzenią zewnętrzną.

Jednym z głównych założeń projektowych było wyeksponowanie istniejących elementów konstrukcji drewnianej. Belki zostały oczyszczone i zaolejowane, a oryginalne sosnowe deski podłogowe zdemontowano, poddano renowacji w lokalnym warsztacie i ponownie wykorzystano na najwyższym poziomie apartamentu obejmującym kuchnię, jadalnię oraz sypialnię. Częściowo ze względu na obecność tych rustykalnych elementów drewnianych zdecydowano się zachować eklektyczny, nieco rustykalny charakter wnętrza. Minimalistyczne, wykonywane na zamówienie meble do zabudowy zestawiono z meblami i obiektami dekoracyjnymi vintage. W mieszkaniu wykorzystano m.in.: będące w posiadaniu właścicieli klasyczne polskie krzesła Śnieżnik 300-201 wyprodukowane w latach 70-tych przez Zjednoczenie Przemysłu Meblarskiego Bystrzyckie Fabryki Mebli; krzesła z serii No Sign of Design projektu holenderskiego designera Richarda Huttena; wazon i półmisek z holenderskiej manufaktury Zaaalberg; obracany stołek kreślarski z pracowni architektonicznej ojca mojego ówczesnego partnera Klaasa, wazon Pogięty zaprojektowany przez Marka Cecułę produkowany pod marką Ćmielów Design Studio. Nowe życie uzyskało również kilka elementów starego wyposażenia – cudaczny żyrandol kuchenny, żeliwny grzejnik, który przeszedł specjalistyczną renowację i deski z rozbiórki starych schodów, z których wykonano stoliki nocne.

Jednym z nieoczekiwanych efektów realizacji okazała się możliwość obserwowania wędrówki słońca po białych ścianach wnętrza w godzinach popołudniowych. Usunięcie drewnianych okładzin ścian i sufitów oraz pomalowanie wnętrz na biało pozwoliło znacząco doświetlić przestrzenie. W połączeniu z naturalnym ciepłem drewna stworzyło to jasne, przytulne wnętrza.

PRZED PRZEBUDOWĄ
PRZED PRZEBUDOWĄ
PO PRZEBUDOWIE
PO PRZEBUDOWIE