SOMINY #2
INWESTYCJA: Dom letniskowy dla gości
ZAKRES: projekt i budowa
LOKALIZACJA: Kaszuby
ROK PROJEKTU: 2025
ROK REALIZACJI: w trakcie
POWIERZCHNIA: 17 m² powierzchni użytkowej
RODZAJ KONSTRUKCJI: konstrukcja drewniana

Domek gościnny jest uzupełnieniem założenia SOMINY #1. Jest to obiekt letniskowy. Poza wykonaniem projektu, po raz pierwszy podjęłam się budowy. Głównymi założeniami było: wykorzystanie istniejących fundamentów oraz materiałów z rozbiórki; prosta konstrukcja; wykorzystanie materiałów 2. i 3. kategorii w miejscach, w których jakość materiałów nie ma znaczenia dla funkcjonowania obiektu; wytworzenie jak najmniejszej ilości odpadów budowlanych.

Budynek zlokalizowany jest na działce o dużym spadku terenu i otoczony jest dorosłymi drzewami. Ze względu na trudny dostęp i ochronę zieleni, zarówno rozbiórka budynku z lat 80-tych, który nie nadawał się do modernizacji, jak i budowa, musiały się odbywać ręcznie, bez zastosowania ciężkiego sprzętu.

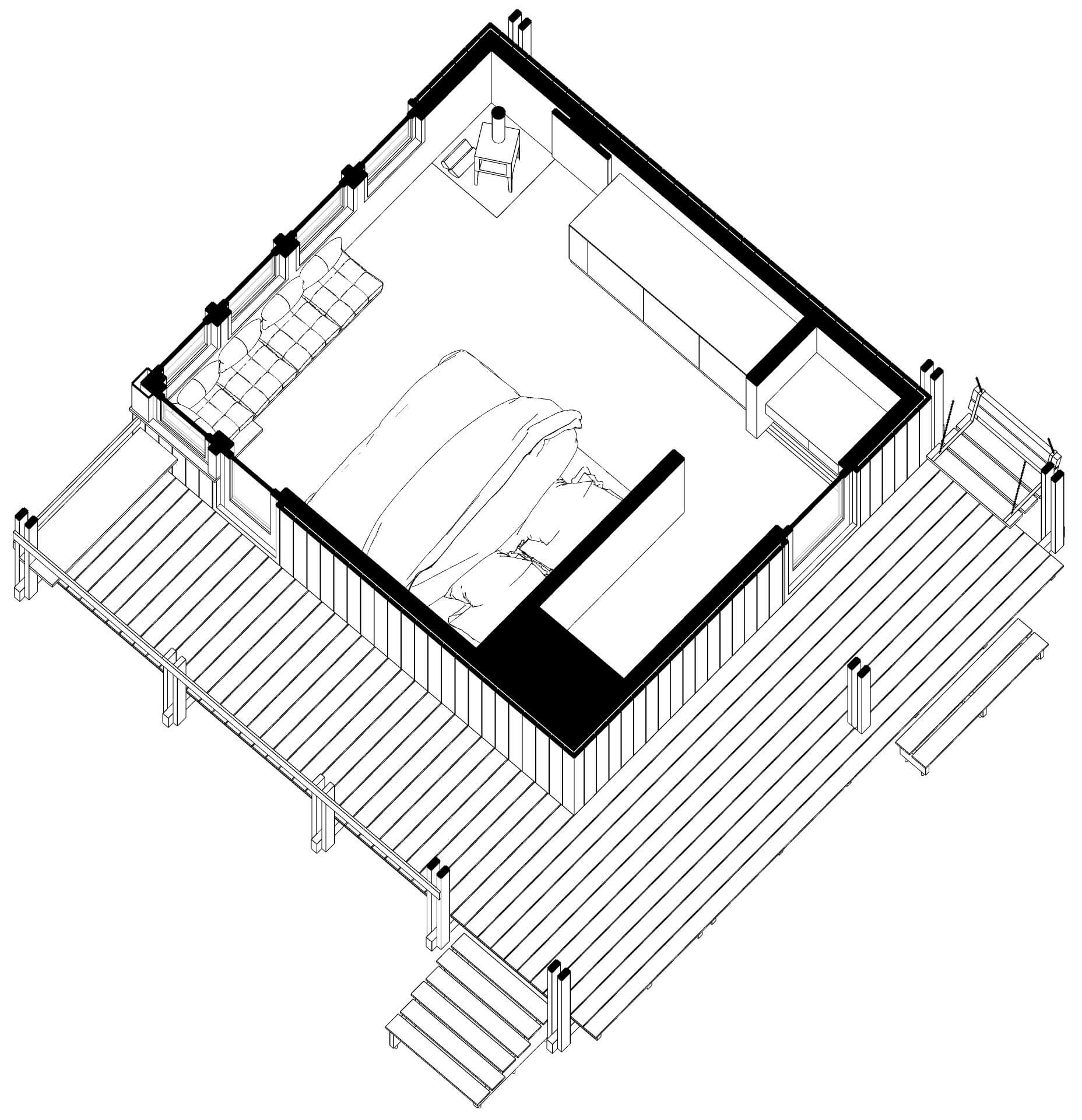
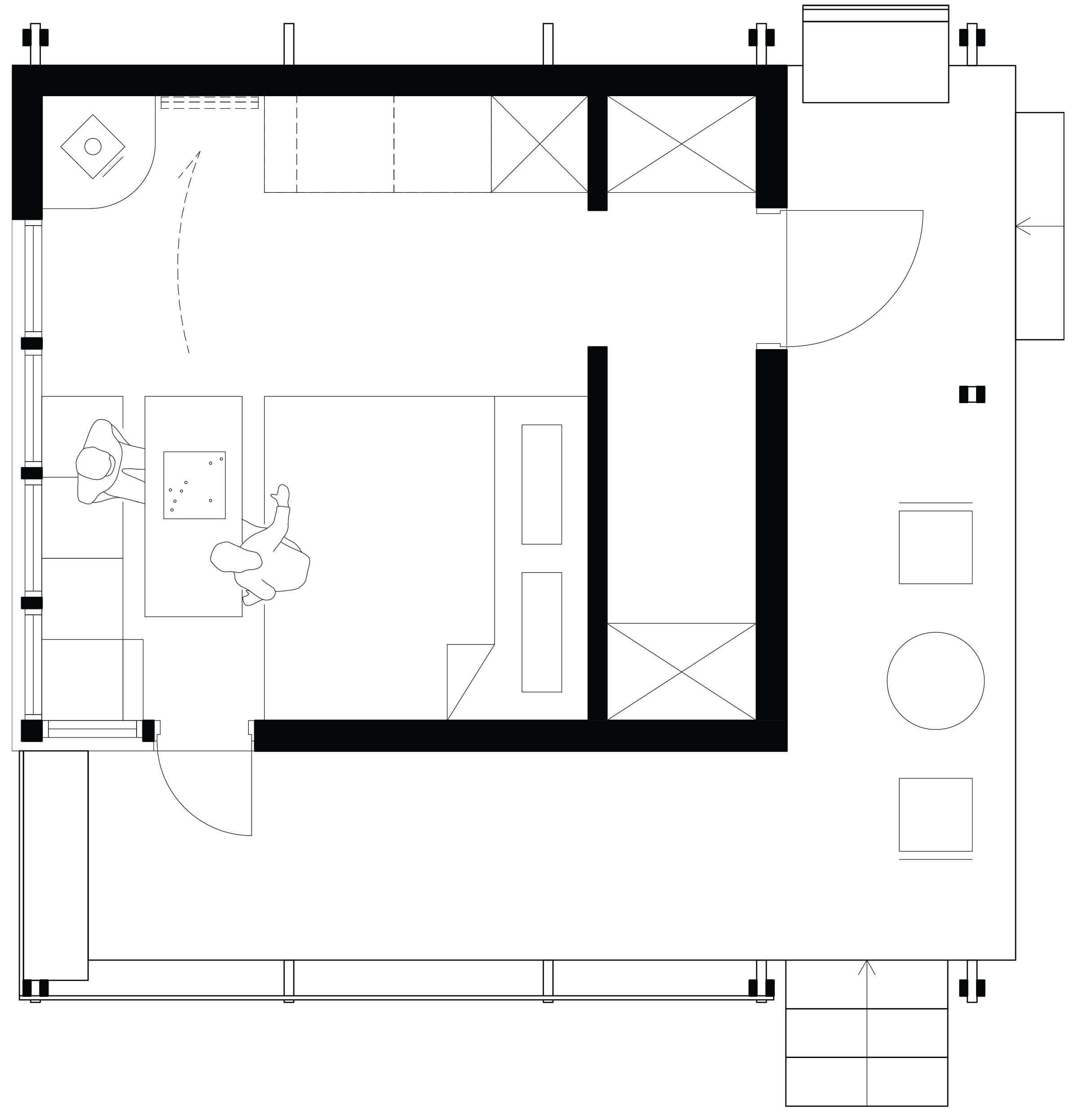
Budynek zaprojektowany został na planie prostokąta, w konstrukcji szkieletowej. Ma niecałe 17 m2 powierzchni użytkowej i 14 m2 powierzchni tarasu. Część zamkniętą i taras przekrywa dach jednospadowy. Na dachu zastosowano tace rozchodnikowe z hodowli znajdującej się 100 km od Inwestycji. Część mieszkalną podzielono na dwie części, przedsionek z szafami i miejscem na meble tarasowe oraz pokój z podestem 200×200 cm do spania, ławą do siedzenia pod rzędem okien z widokiem na dolinę, aneksem kuchennym i niewielką kozą na drewno. Goście korzystać będą z zewnętrznej łazienki zlokalizowanej w pobliżu budynku.

Budynek powstał na istniejących fundamentach. Z rozbiórki poprzedniego obiektu zachowaliśmy część drewna konstrukcyjnego oraz deski podłogowe, które po oczyszczeniu z gwoździ, zostały wykorzystane na taras. Ze względu na ograniczoną ilość desek z rozbiórki i ich nieregularności wymiarowe, konieczne było dokładne dopasowanie układu desek przed przystąpieniem do prac. Żmudny montaż, ale, według nas, wart poświęcenia dodatkowego czasu. Udało się powtórnie wykorzystać cały zachowany materiał z podłogi.

Konstrukcja powstała z nieimpregnowanego drewna czterostronnie struganego oraz z drewna rozbiórkowego (tylko kilka elementów). Ściany zostaną ocieplone i wykończone od zewnątrz deskami w układzie pionowym malowanymi na kolor czarny (podobnie jak budynki SOMINY #1), a od wewnątrz sklejką liściastą impregnowaną bezbarwnym olejowoskiem. Dach został zaprojektowany tak, aby wyeksponować krokwie i aby konstrukcyjna warstwa sklejki na krokwiach stanowiła jednocześnie element wykończeniowy nad tarasem i we wnętrzu. Efektu dopełni prosta drewniana stolarka i minimalistyczne meble ze sklejki.

W oszczędnej formie i detalu konstrukcji można znaleźć trochę inspiracji podróżą do Japonii.

Zakończenie budowy planowane jest na czerwiec 2026 r.