SAMOTNIA #1
INWESTYCJA: OBIEKT LETNISKOWY
ZAKRES: projekt koncepcyjny i konstrukcyjny
ROK PROJEKTU: 2022
ROK REALIZACJI: niezrealizowany
POWIERZCHNIA: 16,5 m² powierzchni użytkowej
RODZAJ KONSTRUKCJI: prefabrykowana konstrukcja drewniana
WIZUALIZACJE: drawahalfcircle.com

Samotnia była pomysłem stworzenia prefabrykowanych domków letniskowych z możliwością transportu obiektów samochodem ciężarowym.

Projekt powstał w dwóch wielkościach (SAMOTNIA #1 i SAMOTNIA #2). Ta, większa wersja, jest samowystarczalna funkcjonalnie. Mniejsza wersja powstała z myślą o polach namiotowych/kempingowych, które posiadają własne zaplecze sanitarne, a budynek byłby luksusowym odpowiednikiem namiotu z widokiem z łóżka na otaczającą przyrodę i niebo.

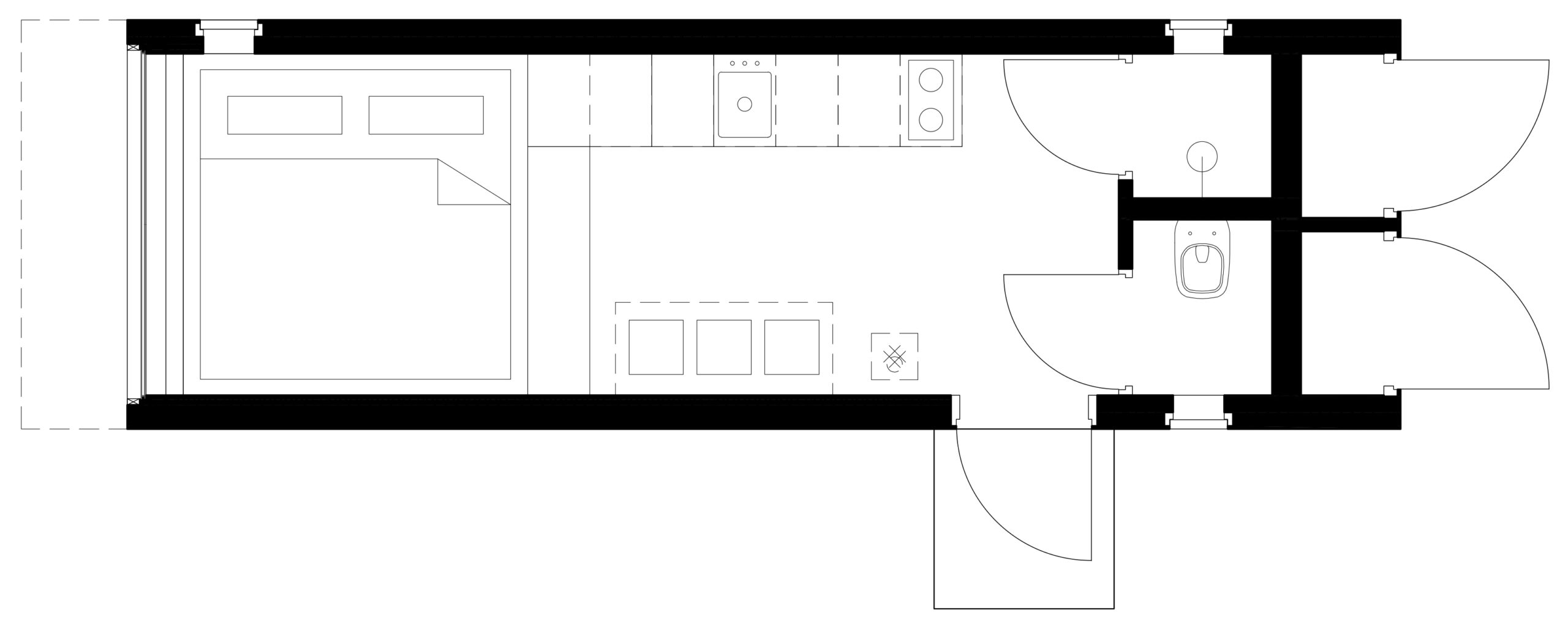
Budynek zaprojektowany został na planie prostokąta z nieco pochyloną przednią ścianą i dachem jednospadowym, na którym istnieje możliwość zainstalowania paneli fotowoltaicznych. Bryłę wyróżnia efektowne przeszklenie przedniej ściany przechodzące w świetlik sufitowy nad przestrzenią do spania. 

Budynek ma 16,5 m2 powierzchni użytkowej. Przestrzeń została podzielona na 5 części:

  • część główną pełniącą rolę pokoju dziennego/sypialni i kuchni wyposażoną w aneks kuchenny, przestrzeń do przechowywania (głównie pod łóżkiem), piecyk na drewno i rozkładany ze ściany blat;
  • wc;
  • prysznic;
  • dwa pomieszczenia gospodarcze z dostępem od zewnątrz (jedno w zamyśle na zbiornik z wodą i niezbędne urządzenia techniczne, drugi na narzędzia i bagaże).

Obiekt nie został zrealizowany, głównie z powodu wątpliwości dotyczących przeszklenia. Element, który nadawał indywidualnego charakteru bryle był kosztowny w realizacji i kłopotliwy w razie konieczności wymiany.