OTOMIN
INWESTYCJA: Budowa budynku mieszkalnego jednorodzinnego z wbudowanym garażem
ZAKRES: projekt koncepcyjny, projekt budowlany
LOKALIZACJA: okolice Gdańska
ROK PROJEKTU: 2020
ROK REALIZACJI: 2021 (budynek), zagospodarowanie terenu w trakcie
POWIERZCHNIA: 170 m² powierzchni netto (z uwzględnieniem garażu)
RODZAJ KONSTRUKCJI: konstrukcja murowo-żelbetowa, dach drewniany

Działka znajduje się na terenie dawnych ogródków działkowych w pobliżu Gdańska. Pięknie położona, w bliskim sąsiedztwie lasu i popularnych terenów rekreacyjnych, okolica znajduje się obecnie w fazie transformacji. Część działek wciąż zajmują niewielkie domki letniskowe z drugiej połowy XX w., podczas gdy na innych powstały i powstają znacznie większe domy jednorodzinne.

Działka ma 462 m2. Miejscowy plan zagospodarowania przestrzennego dopuszczał maksymalną powierzchnię zabudowy budynkami wielkości 25% powierzchni działki oraz wymagał  powierzchni biologicznie czynnej na poziomie co najmniej 60% powierzchni działki. Plan zawężał również formy zabudowy do form tradycyjnych – z dwuspadowymi dachami i wysuniętymi okapami.

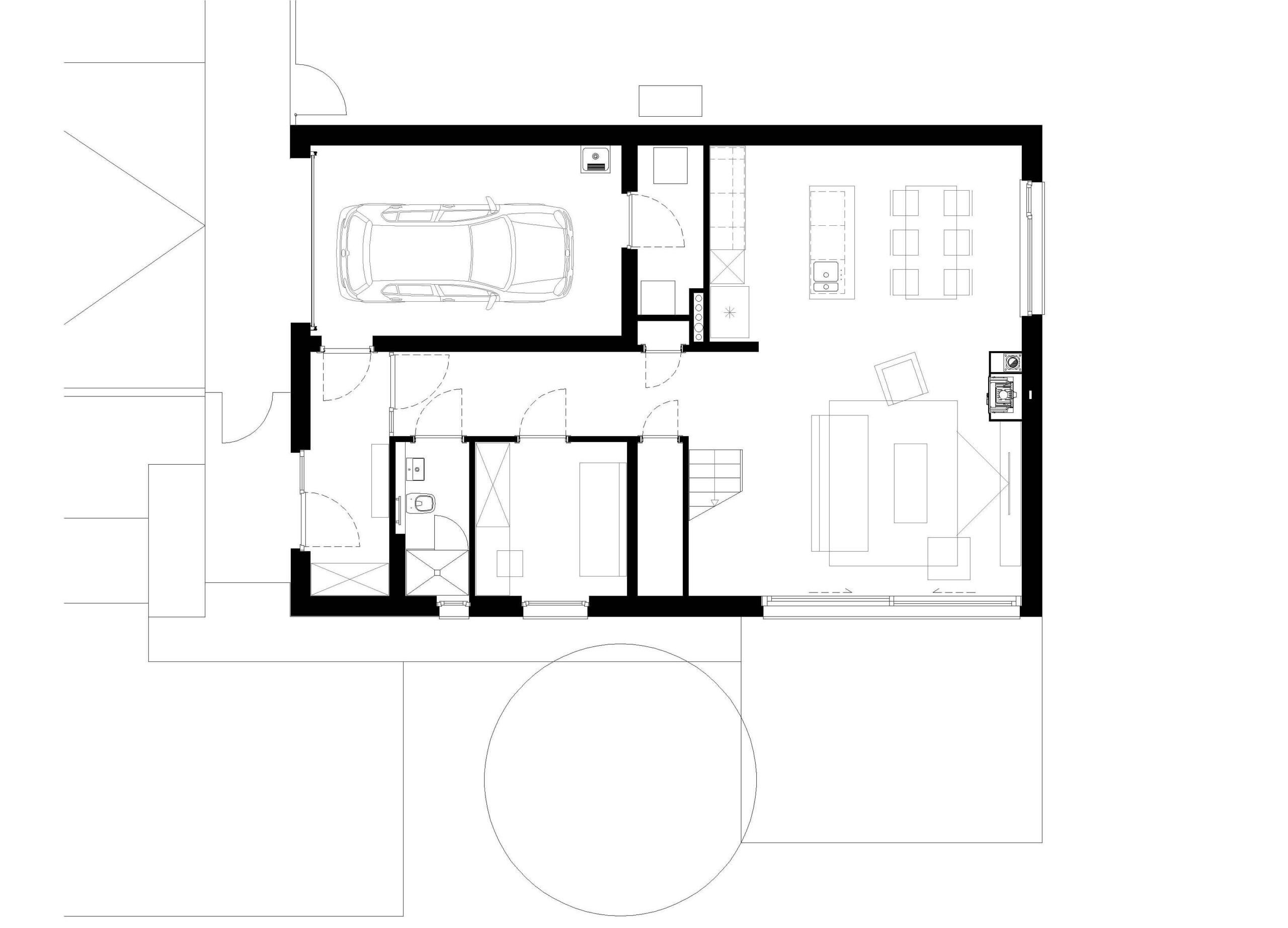
Jednym z pierwszych wyzwań było zapewnienie na działce wystarczającej liczby miejsc parkingowych bez ograniczania powierzchni ogrodu od strony południowej. Działka posiada bardzo wąski dojazd bez możliwości parkowania w najbliższej okolicy, a Inwestorzy posiadali dwa samochody i oczekiwali dwóch dodatkowych miejsc dla gości. Wszystkie cztery miejsca zostały zlokalizowane od frontu – jedno w garażu w bryle budynku, dwa na betonowym podjeździe oraz dodatkowe miejsce do okazjonalnego użytku w ogrodzie, na wyznaczonym obszarze wysypanym żwirem.

Priorytetem było stworzenie niedrogiego, kompaktowego domu, który spełniłby rozbudowaną listę pozostałych życzeń klientów, obejmującą:

  • dwie sypialnie dziecięce z odpowiednim doświetleniem i oddzielną łazienką z wanną;
  • główną sypialnię z prywatną garderobą i łazienką;
  • pokój gościnny na parterze z łatwym dostępem do łazienki z prysznicem;
  • otwartą przestrzeń dzienną z głównym blatem kuchennym ukrytym przed wzrokiem osób w salonie;
  • pralnię;
  • pomieszczenie gospodarcze;
  • oraz ocalenie starej jabłoni rosnącej na froncie działki.

Jedyną ekstrawagancją projektu jest zaproponowana przez Nas szeroka na 5 metrów lukarna z widokiem na koronę przyszłego drzewa i niebo na poddaszu. Stworzono tam wspólną przestrzeń wokół klatki schodowej – miejsce dla domowników, które pozwala na zabawę i odpoczynek bez zakłócania aktywności na parterze. Ponieważ duże okno ma ekspozycję południowo-zachodnią, zaproponowano posadzenie przed budynkiem wysokiego drzewa, aby chronić poddasze przed bezpośrednim nasłonecznieniem, a także zapewnić cień i prywatność tarasowi zaprojektowanemu na przedłużeniu przestrzeni dziennej.